フリー会計ソフト
フリー家計簿ソフト
DIYでウッドデッキ
土壌酸度
e-tax
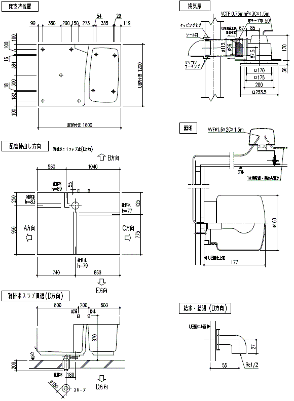
DIYでユニットバスの組み立て(図面4)
購入の検討
図面1P
図面2P
図面3P
図面4P
荷物の到着
部材の確認
床パネルの設置
フレームの設置
壁パネルの設置
壁の設置
天井パネルの設置
Copyright 2010 rinoha all right reserved.